Latest Articles
See more articles

























Villa V Project, Benahavís, Benahavís, Málaga, España
Price:
Delivery date: 4to Trimestre 2027
Lot
800 m²
Livable
800 m²
Beds
6
Baths
8
Levels
0
Parking slots
4
Conditions
New
Finishes
Furnished
Type
House
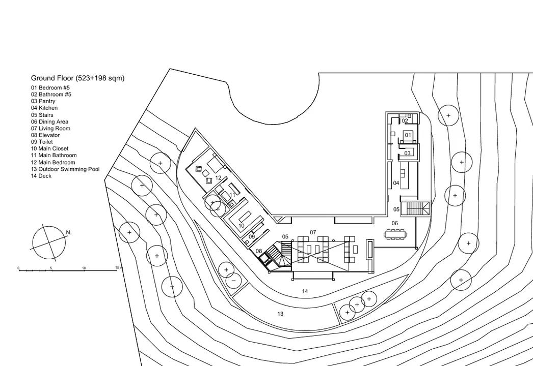
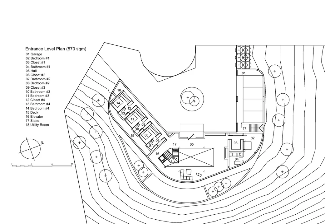
Located in the most exclusive enclave in Europe, this luxury villa in La Zagaleta represents the perfect harmony between contemporary architecture, sophisticated design, and an incomparable natural setting. Conceived for a client who seeks absolute privacy, panoramic views, and the highest quality materials, the property integrates elegantly into one of the most privileged plots in the development, surrounded by Mediterranean nature and with open views to the sea, the valley, and the mountains.
The residence develops with a sustainable architectural approach, wide floor-to-ceiling windows, and a fluid layout that connects interior spaces with expansive terraces, landscaped gardens, and an infinity pool. The daytime areas stand out for their spaciousness and brightness, while the private spaces offer maximum comfort, with thoughtfully designed suites, bathrooms in natural marble, and walk-in wardrobes.
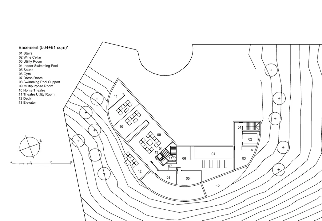
The villa also incorporates a set of first-rate amenities: private spa, fully equipped gym, cinema room, climate-controlled wine cellar, and a garage for several vehicles. Every detail—from ambient lighting to advanced home automation systems—has been selected to guarantee an exceptional living experience.
With a high level of security, premium services, and access to private facilities such as golf courses, equestrian facilities, a social club, and 24-hour access control, this villa positions itself as a unique residence destined to become a benchmark of luxury and exclusivity in Marbella.
*Availability and prices subject to change without prior notice.
Delivery date
4th quarter 2027m² Habitable
800 m²Service room
SIAir Conditioning
Swimming Pool
Laundry Area
Closet
Grills
Restroom
Common Areas
Covered Parking
Library
Heating
Cinema
Utility Room
Appliances
Outdoor Area
Gym

Maximize your returns with investments cross-border in the Spanish real estate market.
Invest from MexicoMortgage credit
Market intelligence
Purchase Expenses and Taxes
Financial advice
Tax Law in Spain
Operational property management
Financial advisor interview
Property comparison
Pay property section
Request NIE
Enter mortgage credit documents
Sign purchase/sale contract
Banks authorize mortgage credit
Collect property documents
Define deed date
Liquidate property Deed
Liquidate property Deed